Myynnissä olevat tontit
Luhangan kunta myy tontteja Luhangan kirkonkylällä Hepoluhdan, Koivuniemen ja Pellonpään alueilta sekä Tammijärvellä Nuhlaantien varresta. Tonttien hinnat 0,50 euroa/neliö.
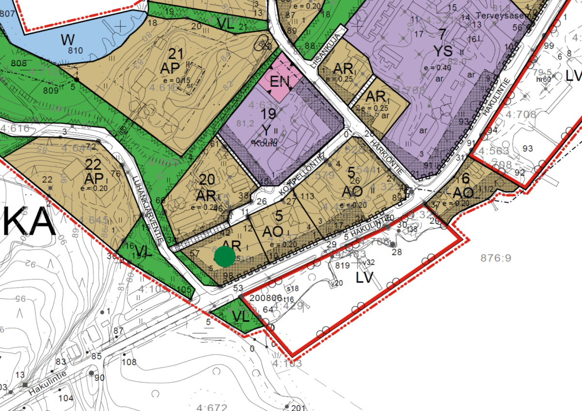
Tonttien sijainnit on merkitty karttaan. Lähennä karttaa nähdäksesi tonttien sijainnit tarkemmin.
Hepoluhta: tontteja uudella asuinalueella Päijänteen rantamaisemassa
- Valokuitu tonttien reunalla
- Sähkö-, vesi- ja viemäriliittymät tonttien reunalla
- Tontin ostajalle ja rakentajalle venepaikka Päijänteeltä 5 vuodeksi
Hepoluhdassa vapaana olevat tontit (listaa päivitetty viimeksi 3.8.2023)
| Kortteli / tontti | Osoite | Pinta-ala m2 | Rakennusoikeus/kem2 | Hinta € |
| 119/1 | Luhtatie 1 | 3560 | 712 | 1780,00 |
| 119/2 | Luhtatie 3 | 3175 | 635 | 1587,50 |
| AP=Asuinpientalojen korttelialue, tehokkuusluku e=0,20 | ||||
| 115/2 | Luhtatie 11 | 1920 | 350 | 960,00 |
| AO = Erillispientalojen korttelialue | ||||
| 113/1 | Luhtatie 5 | 1505 | 301 | 752,50 |
| 113/2 | Luhtatie 7 | 1870 | 374 | 935,00 |
| AP = Asuinpientalojen korttelialue, tehokkuusluku e=0,20 | ||||
| 104/1 | Pahkakuja 1 | 3090 | 350 | 1545,00 |
| 104/2 | Juhannussaarentie 8 | 2910 | 350 | 1455,00 |
| AO = Erillispientalojen korttelialue | ||||
| 105/1 | Pahkakuja 4 | 2445 | 350 | 1222,50 |
| 105/2 | Pahkakuja 2 | 2395 | 350 | 1197,50 |
| 105/3 | Juhannussaarentie 4 | 2400 | 350 | 1200,00 |
| AO = Erillispientalojen korttelialue |



Koivuniemi: omakotitaloalue kirkonkylän keskustan välittömässä läheisyydessä
- Luhangan kirkonkylällä, Luhankjärventien lopussa
- Sähkö-, vesi- ja viemäriliittymät tonttien reunalla

Pellonpää: rantamaisematontti, jolle voi rakentaa omakotitalon tai rivitalon
- Luhangan kirkonkylällä, Hakulintien ja Luhankjärventien kulmassa
- 100 metriä kunnan satamasta

Nuhlaantie: tontteja uuden koulun läheisyydessä
- Sijainti alle 1 km uudesta koulusta 610-tien varressa
- Valokuitu tonttien reunalla
- Sähkö-, vesi- ja viemäriliittymä tonttien reunalla
Tiedustelut:
Tonttien myyntiin liittyvät tiedustelut puhelimitse kunnan vaihteeseen, puh. 040 3479 201, sähköpostilla luhanka@luhanka.fi tai yhteydenottolomakkeella.
Katso myös:
www.etuovi.com
www.oikotie.fi
www.tori.fi
